伟德源自英国始于1946
设为首页
加入收藏
网上办事大厅
首页
伟德源自英国始于1946
学校介绍
学校领导
机构设置
师院新闻
学院动态
校园风采
学习新思想
习近平文汇
学习新思想
学习理论
强国复兴有我
评建专栏
评建专栏
师范认证
本科教育教学审核评估专题
国际交流
通知公告
文明创建
师资队伍
专业建设
专科生培养
本科生培养
成人教育
教学资源
招生信息
科学研究
信息公开
党的二十届三中全会
通知公告
当前位置:
首页
>
通知公告
> 正文
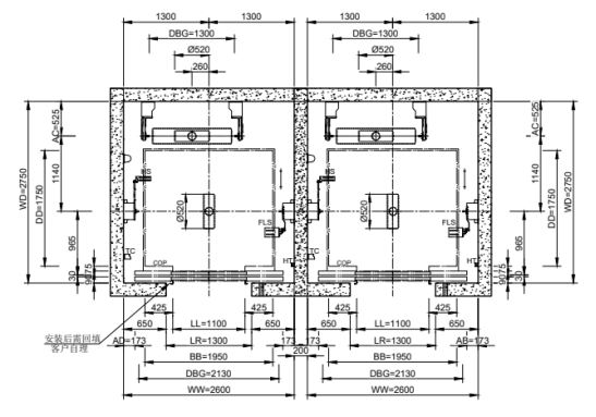
图书信息楼电梯拆除及电梯土建部分改造采购公告
发布日期:2022-05-29 作者: 来源:
附件
3
附件
4
附件
5
上一页
[1]
[2]
[3]
[4]
上一篇:
会场网络设备升级改造采购公告
下一篇:
伟德源自英国始于1946学术报告厅多媒体教学显示系统采购竞争性磋商公告